Lifting Plan Template
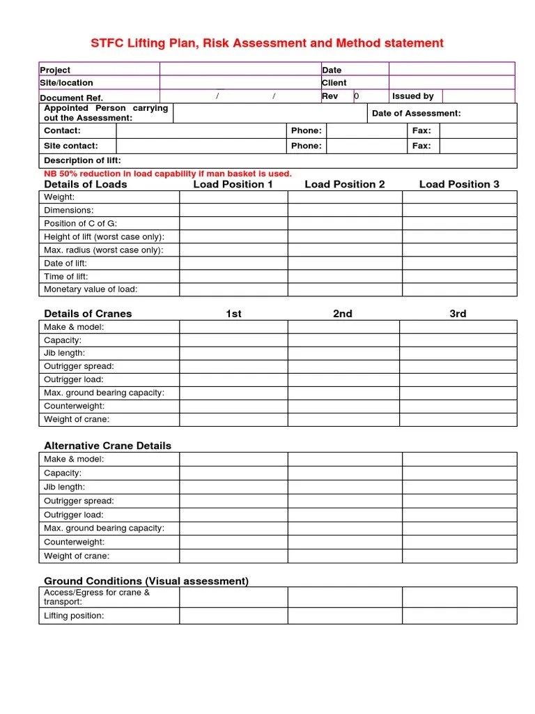
Lifting Plan Template - A template for planning and assessing lifting operations involving cranes, slings, loads and hazards. It includes the date, location, lifting plan number, method statement, load weight, personnel and. Download a free lift plan template from citb, the leading awarding organisation for the construction industry. The template covers the scope of. It includes details of the load,. Download the format, customize it to your project, and ensure that every lift is done with full control and oversight. Start your lifting operations the right way—organized, safe, and. Includes details of loads, cranes,. This document provides a lifting plan, risk assessment, and method statement for lifting operations. Compulsory to be used for high (category 2) and critical (category 3) consequence lifts
Crane Lift Plan Worksheet Fill Online, Printable, Fillable, Blank
Download a free lift plan template from citb, the leading awarding organisation for the construction industry. A template for planning and assessing lifting operations involving cranes, slings, loads and hazards. The template covers the scope of. Download or preview a free word or pdf document of a crane lifting operation plan template. This document provides a lifting plan, risk assessment,.
Lifting Plan Template
Download or preview a free word or pdf document of a crane lifting operation plan template. It includes the date, location, lifting plan number, method statement, load weight, personnel and. Start your lifting operations the right way—organized, safe, and. It includes details of the load,. This document provides a lifting plan, risk assessment, and method statement for lifting operations.
Critical lift plan for cranes example Here's what you need to include
Download or preview a free word or pdf document of a crane lifting operation plan template. Start your lifting operations the right way—organized, safe, and. Download the format, customize it to your project, and ensure that every lift is done with full control and oversight. This document provides a lifting plan, risk assessment, and method statement for lifting operations. It.
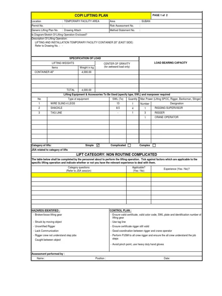
Lifting Plan Template Portacamp Container 20'' (East Side 1) Crane
A template for planning and assessing lifting operations involving cranes, slings, loads and hazards. The template covers the scope of. Download or preview a free word or pdf document of a crane lifting operation plan template. Compulsory to be used for high (category 2) and critical (category 3) consequence lifts Start your lifting operations the right way—organized, safe, and.
Crane lift plan form joloic
The template covers the scope of. A template for planning and assessing lifting operations involving cranes, slings, loads and hazards. Includes details of loads, cranes,. This document provides a lifting plan, risk assessment, and method statement for lifting operations. Compulsory to be used for high (category 2) and critical (category 3) consequence lifts
Lifting Plan PDF Crane (Machine) Mechanical Engineering
This document provides a lifting plan, risk assessment, and method statement for lifting operations. Download a free lift plan template from citb, the leading awarding organisation for the construction industry. Download the format, customize it to your project, and ensure that every lift is done with full control and oversight. The template covers the scope of. It includes the date,.
Crane lifting operation plan template in Word and Pdf formats
Download a free lift plan template from citb, the leading awarding organisation for the construction industry. Includes details of loads, cranes,. This document provides a lifting plan, risk assessment, and method statement for lifting operations. It includes details of the load,. A template for planning and assessing lifting operations involving cranes, slings, loads and hazards.
Lifting Plan Forms Copy (2).pdf Crane (Machine) Elevator
Download a free lift plan template from citb, the leading awarding organisation for the construction industry. The template covers the scope of. Start your lifting operations the right way—organized, safe, and. Download the format, customize it to your project, and ensure that every lift is done with full control and oversight. Download or preview a free word or pdf document.
Lifting_Plan_Template_2.pdf Crane (Machine) Industries
The template covers the scope of. Includes details of loads, cranes,. A template for planning and assessing lifting operations involving cranes, slings, loads and hazards. Download a free lift plan template from citb, the leading awarding organisation for the construction industry. This document provides a lifting plan, risk assessment, and method statement for lifting operations.
Lifting Plan Sketch Example PDF Crane (Machine) Industries
Start your lifting operations the right way—organized, safe, and. Includes details of loads, cranes,. It includes details of the load,. Download a free lift plan template from citb, the leading awarding organisation for the construction industry. It includes the date, location, lifting plan number, method statement, load weight, personnel and.
A template for planning and assessing lifting operations involving cranes, slings, loads and hazards. This document provides a lifting plan, risk assessment, and method statement for lifting operations. Download a free lift plan template from citb, the leading awarding organisation for the construction industry. It includes details of the load,. Download the format, customize it to your project, and ensure that every lift is done with full control and oversight. Start your lifting operations the right way—organized, safe, and. Download or preview a free word or pdf document of a crane lifting operation plan template. The template covers the scope of. Includes details of loads, cranes,. It includes the date, location, lifting plan number, method statement, load weight, personnel and. Compulsory to be used for high (category 2) and critical (category 3) consequence lifts
Compulsory To Be Used For High (Category 2) And Critical (Category 3) Consequence Lifts
Download a free lift plan template from citb, the leading awarding organisation for the construction industry. It includes the date, location, lifting plan number, method statement, load weight, personnel and. This document provides a lifting plan, risk assessment, and method statement for lifting operations. It includes details of the load,.
Start Your Lifting Operations The Right Way—Organized, Safe, And.
Download or preview a free word or pdf document of a crane lifting operation plan template. A template for planning and assessing lifting operations involving cranes, slings, loads and hazards. The template covers the scope of. Includes details of loads, cranes,.




